Арендный бизнес.Стабильный доход!
Цена продажи
10300000 руб.
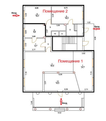
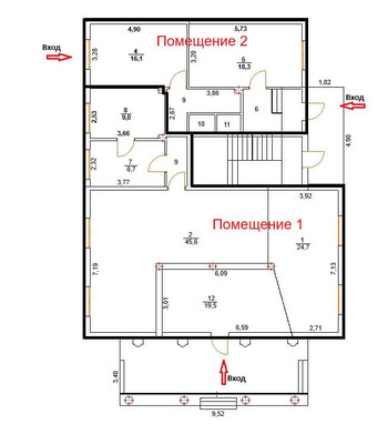
Арт. 127427434 ПРОДАЕТСЯ ТОРГОВОЕ ПОМЕЩЕНИЕ 160 кв.м на 1 этаже сталинки! Ул. Ильича, 30.
УНИКАЛЬНАЯ ПЛАНИРОВКА: Два блока с отдельными входами. Можно объединить или использовать как два независимых объекта. · Блок 1 (~110 кв.м): ДЕЙСТВУЮЩИЙ АРЕНДАТОР — федеральная сеть «Красное & Белое». Стабильный доход.· Блок 2 (~50 кв.м): С отдельным входом. Ведутся переговоры с потенциальным ФЕДЕРАЛЬНЫМ арендатором.· Бонус: в пользование передаётся ИЗОЛИРОВАННЫЙ ПОДВАЛ ~80 кв.м под склад или сервис. ГОТОВЫЙ АРЕНДНЫЙ БИЗНЕС С ПОТЕНЦИАЛОМ РОСТА! ИНВЕСТИЦИОННЫЙ ПРОФИЛЬ:· Цена: 10 300 000 руб.· Окупаемость: от 8,5 лет. Срок можно сократить за счёт подвала и сдачи свободной площади. ХАРАКТЕРИСТИКИ: 1. Локация: Дзержинский район. Рядом «Магнит», «Чижик», банки. Высокий трафик.2. Доступ: Два входа на пешеходный поток и магистраль. Своя парковка.3. Техника: Потолки 3 м, электричество 25 кВт (можно увеличить). Состояние — под ремонт под ваш бизнес. СОБСТВЕННИК ГОТОВ РАССМОТРЕТЬ ВОПРОС О ПРОВЕДЕНИИ РЕМОНТА по запросу покупателя! КОМУ ПОДОЙДЕТ:· Инвесторам — под стабильный доход.· Предпринимателям — под крупное зонируемое пространство.· Бизнесу, нужны две независимые точки в одном месте.· Тем, кому нужен магазин/услуги с готовым складом (подвал). ДОКУМЕНТЫ: Собственность. Нет обременений, залога, долгосрочной аренды. Полный пакет готов. Готов предоставить финансовую модель, копии договоров аренды и выписку ЕГРН. ЗВОНИТЕ, чтобы обсудить детали, вариант с ремонтом и договориться о просмотре. #8894234# Общая стоимость: 10300000 руб./месяц Этаж/этажность: 1/3 Агентам: Не звонить |
2181986 06 Декабря 2025 просмотров 15 |
Добавить комментарий
Похожие объявления











